Bilocale in vendita

Madone, Via Giuseppe Verdi
€ 70.000
2 locali 2 locali
55 Mq 55 Mq
1 bagno 1 bagno

Bilocale in vendita

Madone, Via Giuseppe Verdi

Descrizione annuncio

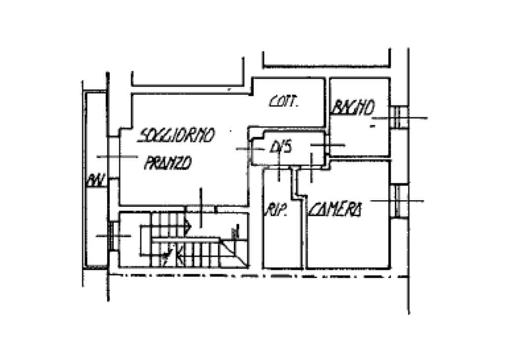
Trattasi di appartamento bilocale a piano primo in corte riservata.

Tramite il cortile si accede alla scala in comune che porta alla soluzione.

Appena entrati troviamo il soggiorno con angolo cottura servito di uscita sull’ ampio balcone, sulla destra, un disimpegno che conduce alla zona notte composta da ripostiglio, camera matrimoniale, bagno servito di vasca.

La soluzione è particolarmente indicata per investitori in cerca di un immobile da mettere a reddito.

UBICAZIONE E CONTESTO

L'immobile è situato vicino al centro di Madone, vicino a tutti i principali servizi che il comune offre.

Si trova inoltre a pochi minuti di auto dal casello dell’autostrada di Capriate importante via di comunicazione della zona.

Mostra tutto

Nelle vicinanze

Trasporto pubblico Trasporto pubblico
Trasporto pubblico
180 m
848
848
2,4 Km
Ricariche auto elettriche Ricariche auto elettriche
Evbility Filago Via Moro
1,8 Km
Scuole Scuole
XPRESS Scuola di lingue
320 m
Scuola Primaria Edmondo De Amicis
2,4 Km
Scuola Secondaria Aldo Moro
2,6 Km
Farmacia Farmacia
Farmacia
200 m
Farmacia Fumagalli
1,5 Km
Supermercati Supermercati
Punto SMA
180 m
Alimentari Menni
370 m
Conad
1,1 Km
Supermercati
2,6 Km
Negozi Negozi
Negozi
190 m
La bottega del campanile
1,8 Km
U2
2,5 Km
Bar Bar
Caffè dei Vignali
150 m
Melograno
220 m
Bar
280 m
Sun Flower
440 m
L'oca ubriaca
1,8 Km
Ristoranti Ristoranti
Pizzeria
450 m
L'Agrodolce
600 m
Ristoranti
2,5 Km
PizzaClub No Limits
3,0 Km
Mostra tutto

Caratteristiche

Rif.:
61149235
Piano:
1 di 2 (Piano medio)
Posti auto:
1
Balconi:
1
Camere da letto:
1
Arredamento:
Parziale
Mostra tutto
Prezzo Prezzo
€ 70.000
Rata mutuo Rata mutuo
€ 330 / mese
Spese annue Spese annue
€ 0
Proponi il tuo prezzoProponi il tuo prezzo

Altre caratteristiche

Descrizione dei locali
Cucina non abitabile

Classe Energetica

D
D
D
D
D
D
D
D
D
EP globale non rinnovabile:
90.64 kW h/m² anno
EP invernale del fabbricato:
EP estiva del fabbricato:
Anno di costruzione:
1967
Riscaldamento:
Autonomo
Tipo impianto:
A radiatori
Tipo alimentazione:
Metano

Ti interessa visionare l'immobile?

Fissa un appuntamento  Fissa un appuntamento

Richiedi informazioni

Clicca su Leggi per aprire l'informativa
* Questi campi sono obbligatori

Calcola il tuo mutuo

Semplice e senza impegno
Anticipo

( % )
Mutuo

( % )

pochi semplici passi

inserisci i tuoi dati
Questionario completato
Grazie per aver richiesto un appuntamento senza impegno con un nostro Consulente del Credito e Assicurativo.

Hai inserito correttamente tutti i dati necessari e a breve riceverai una e-mail con un link da convalidare per inviare i tuoi dati.
Affiliato
Agenzia Quattro Torri Srl
P.zza dei Vignali, 5 24040 Madone (BG)

Il nostro staff


  • Lamya Biad
    Collaboratrice

  • Matteo Amalio Leoni
    Collaboratore

  • Kevin Maffolini
    Affiliato

  • Giulia Mandelli
    Collaboratrice

  • Jesus Massimo Bergamaschi
    Affiliato
P.zza dei Vignali, 5 24040 Madone (BG)
Zona: Madone
Mostra su mappa
Affiliato
Agenzia Quattro Torri Srl
P.zza dei Vignali, 5 24040 Madone (BG)

2026 Tecnocasa Franchising S.p.A. - P. IVA 08365160152 - Via Monte Bianco 60/A 20089 Rozzano (MI). Ogni agenzia ha un proprio titolare ed è autonoma. Privacy policy | Policy utilizzo | Cookie policy